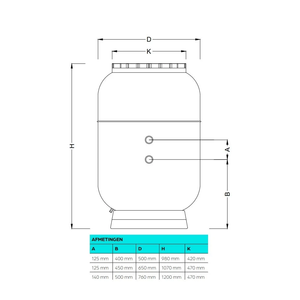
AQT Halfhoogbedfilter
AQT halfhoogbedfilter van premium kwaliteit. Gelamineerde polyester filter met transparant deksel , ontluchtingsventiel en manometer.
Eigenschappen van de halfhoogbedfilter
- Glasvezelversterkte gelamineerde polyester filter
- Transparant filterdeksel met grote diameter van 47cm om het filterglas of filterzand eenvoudig en snel te kunnen vervangen
- In het deksel zit een ontluchting en een manometer geïntegreerd
- Inclusief kwalitatief hoogstaande Praher 6 weg kraan
- Aanbevolen druk in de zandfilter is 2 bar, de haflhoogbedfilter werd getest op een druk van 4 bar
- Handige 3 delige PVC aansluitstukken voor directe aansluiting van bv een besgo automatische spoelklep
- Drain onderaan de zandfilter voor het leeglaten in de winter
- 100% getest – 10 jaar garantie op de tank – 2 jaar garantie op de 6-weg kraan.
Vullen van deze zwembad zandfilter
Deze halfhoogbedfilter maar ook onze andere zwembad zandfilters vul je met ofwel AFM filterglas of met filterzand. Het voordeel van een half hoogbedfilter is het “verhoogde” zandbed. Dit zorgt voor een betere fysieke filtratie van het zwembadwater. Hoe hoger dit zandbed is, hoe zuiverder en helderder het zwembadwater zal zijn in het zwembad.
Dit betekent dat u in deze filter met verschillende fijnheden kan werken. Zo kan u onderaan op de ster filter kiezel gebruiken, daarop fijn filterzand. Met AFM filterglas dezelfde methode, onderaan grade III daarop grade I AFM Filterglas. Het voordeel van filterGLAS, is dat u minder van moet in de filter doen. Bovendien hoeft u dit filtermatieraal ook niet meer (of veel minder) nog te vervangen.
Rekenvoorbeeld vullen AQT halfhoogbedfilter
Filter met diameter 650mm :
- 250kg zand
- 50 kg 0,8 – 1.6 mm filterzand
- 200 kg 0,4 – 0,6 mm filterzand
- of 200kg filterglas
- 30 kg AFM grade III
- 170 kg AFM grade I
We adviseren volgende debieten voor de zandfilters :
- 500 mm voor een debiet van 10m³/u voor zwembaden tot 35m³
- 650 mm voor een debiet van 15m³/u voor zwembaden tot 55m³
- 760 mm voor een debiet van 22m³/h voor zwembaden tot 80m³
- 900 mm voor een debiet van 30m³/h voor zwembaden tot 120m³
Wenst u een offerte of meer info kan u mailen naar : [email protected]












Beoordelingen
Er zijn nog geen beoordelingen.